Na sprzedaż – bliźniak Warszewo/Osów – 4-5 pokoi

Szczecin
Osów, Zachodniopomorskie
NYC21431 10272601
850 000 PLN
Cena za m²: 10 482,18 PLN

Na sprzedaż nowoczesny bliźniak w stanie deweloperskim, położony na kameralnym i spokojnym osiedlu, w otoczeniu ciszy i zieleni.

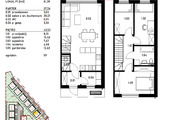
Dom o funkcjonalnym układzie 4 pokoi, zapewnia wygodę codziennego życia.
Na parterze znajduje się przedsionek (3,04m2), pomieszczenie gospodarcze (3,34m2), oddzielne WC (0,97m2), oraz przestronna strefa dzienna, na którą składa się salon z aneksem kuchennym (30,21m2) i wyjściem do ogródka (59m2). Na piętrze natomiast mamy duży przedpokój (8,13m2), trzy sypialnie o wymiarach – 10,42m2, 7,47m2 i 12,63m3, oraz łazienkę (4,88m2).
Dodatkowym atutem jest spora powierzchnia strychowa, idealna do przechowywania.
Ogród od południowego-zachodu to ogromny plus tego lokalu.

Nieruchomość została wyposażona w nowoczesne i energooszczędne rozwiązania:
pompę ciepła, rekuperację, oraz ogrzewanie podłogowe w każdym pomieszczeniu.
Bezpieczeństwo zapewniają drzwi antywłamaniowe, a możliwość podłączenia światłowodu, gwarantuje szybki internet do pracy i rozrywki.

Przed budynkiem znajdują się dwa prywatne miejsca postojowe.

To idealna propozycja dla osób ceniących nowoczesny design, komfort oraz spokojne otoczenie z szybkim dostępem do infrastruktury miejskiej.
W ofercie posiadamy jeszcze inne – podobne lokale.

Cena za m²
10 482,18
Stan prawny
Własność
Powierzchnia
81.09 m²
Powierzchnia użytkowa
81.09 m²
Liczba pokoi
4
Liczba pięter
1
Materiał
Silikat
Stan budynku
Stan deweloperski
Stan nieruchomości
Stan deweloperski
Typ kuchni
Aneks
Garaż/Miejsca parkingowe
Tak
Powierzchnia ogrodu
59 m²
Stan prawny gruntu
Własność
Powierzchnia działki
110 m²
Kształt działki
Nieregularny
Droga dojazdowa
Utwardzona
Kanalizacja
Tak
Prąd
Tak
Woda
Tak
Zapisz się na nasz newsletter i odbierz bezpłatny poradnik
Zapisując się wyrażasz zgodę na przesyłanie informacji handlowych związanych z działalnością firmy Atelia Agnieszka Zalewska za pomocą środków komunikacji elektronicznej w rozumieniu ustawy z dnia 18 lipca 2002 roku o świadczenie usług drogą elektroniczną (Dz.U.2017.1219 t.j.) na podany adres e-mail przez firmę Atelia Agnieszka Zalewska. Zgoda jest dobrowolna i może być w każdej chwili wycofana, klikając w odpowiedni link na końcu wiadomości e-mail. Wycofanie zgody nie wpływa na zgodność z prawem przetwarzania, którego dokonano na podstawie zgody przed jej wycofaniem. Więcej informacji na ten temat przeczytasz w Polityce Prywatności.