Piętro domu, 139m2, 3pokoje, działka, 410 tys.zł

Kamień Pomorski
Zachodniopomorskie
PMR25466 10265544
410 000 PLN
Cena za m²: 4 648,53 PLN

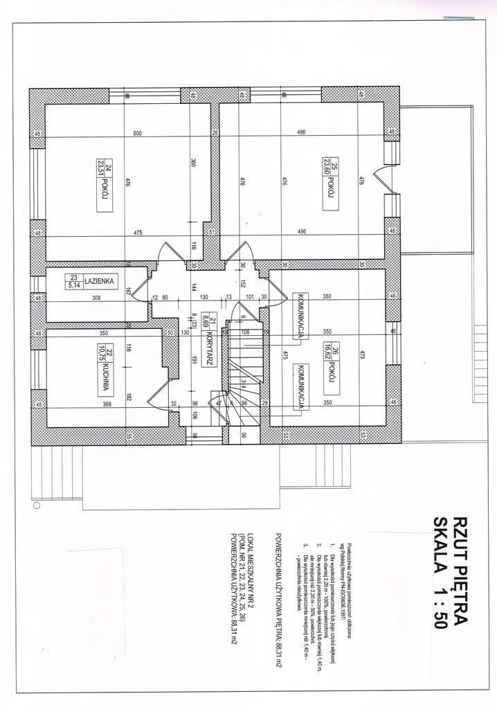
Atrakcyjna część domu wolno stojącego w podziale poziomym, zlokalizowana w Kamieniu Pomorskim, na pierwszym piętrze przedwojennego budynku o klasycznej architekturze. Przedmiotem sprzedaży jest lokal mieszkalny wraz ze strychem, pomieszczeniem gospodarczym w piwnicy, udział w gruncie oraz działka o powierzchni 383m2 przyległa do sprzedawanej nieruchomości. Powierzchnia użytkowa mieszkania wynosi 88,31m2 i składa się z:- korytarza ok. 9m2, -pokoju o pow. ok. 24m2 z wyjściem na balkon, pokoju o pow 23,5m2, dużej kuchni o powierzchni 10m2 oraz łazienki razem z wc o powierzchni 5m2. Pokoje i kuchnia są niezwykle ustawne i bardzo dobrze doświetlone. Na podłogach znajduje się deska oraz w łazience kafle. Okna wymienione na pcv, Instalacja ogrzewania miedziana. Na dachu dachówka cementowa. Współwłaściciele domu dokonali podziału części wspólnych na zasadzie wyłącznego korzystania. Księga Wieczysta bez obciążeń. Na przyległej działce prawdopodobnie istnieje możliwość utworzenia dogodnej ilości miejsc postojowych, wystąpienia o pozwolenie na wybudowanie garażu, lub wykorzystanie jej na cele rekreacyjne – będzie to wynikało z planu ogólnego lub MPZP. Doskonały dojazd do nieruchomości. Miejscowość Kamień Pomorski położona jest nad Zalewem Kamieńskim, 90 km od Szczecina i 8km od morza. Posiada nową, piękną marinę -w jednym z najnowocześniejszym portów jachtowych na południowym Bałtyku oraz zabytkową, XII wieczną Katedrę.

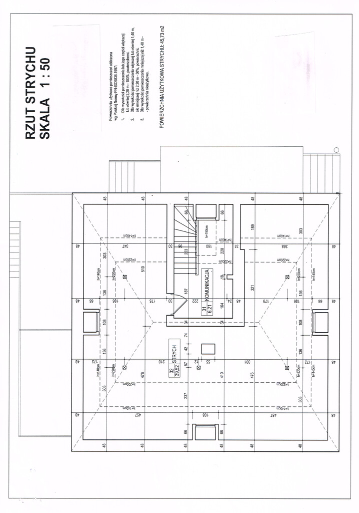
Świadectwo charakterystyki energetycznej – zapotrzebowanie na energię:

EU – użytkową (kWh/m2*rok): 43.61; EK – końcową (kWh/m2*rok): 58.47; EP – nieodnawialną energię pierwotną (kWh/m2*rok): 64.31; EC02 – Wielkość emisji CO2 (t C02/m2*rok): 0.01; UOZE – Udział odnawialnych źródeł energii w zapotrzebowaniu na energię końcową [%]: 0.00;

Cena za m²
4 648,53
Stan prawny
Własność
Powierzchnia
139.24 m²
Powierzchnia użytkowa
88.3 m²
Liczba pokoi
3
Liczba pięter
1
Materiał
Cegła
Stan budynku
Dobry
Stan nieruchomości
Do drobnego remontu
Typ kuchni
Oddzielna
Powierzchnia działki
383 m²
Kształt działki
Prostokąt
Droga dojazdowa
Asfaltowa
Kanalizacja
Tak
Prąd
Tak
Woda
Tak
Gaz
Tak
Zapisz się na nasz newsletter i odbierz bezpłatny poradnik
Zapisując się wyrażasz zgodę na przesyłanie informacji handlowych związanych z działalnością firmy Atelia Agnieszka Zalewska za pomocą środków komunikacji elektronicznej w rozumieniu ustawy z dnia 18 lipca 2002 roku o świadczenie usług drogą elektroniczną (Dz.U.2017.1219 t.j.) na podany adres e-mail przez firmę Atelia Agnieszka Zalewska. Zgoda jest dobrowolna i może być w każdej chwili wycofana, klikając w odpowiedni link na końcu wiadomości e-mail. Wycofanie zgody nie wpływa na zgodność z prawem przetwarzania, którego dokonano na podstawie zgody przed jej wycofaniem. Więcej informacji na ten temat przeczytasz w Polityce Prywatności.