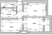
Wohnung zu verkaufen 62 m²SzczecinNiebuszewo, ZachodniopomorskieKNS20380 10266530 449 000 PLN: 7 241,94 PLNAdministrative Miete: 530 PLN 7 241,94Administrative Miete530 PLNOwnership-TypHypothekGesamtfläche62 m²Zahl der Zimmer3Boden2Anzahl der Etagen4MaterialBacksteinDie BauweiseMietshausZustandTo refreshKüche TypSeparateBoden Eigentum TypHypothekGasJa