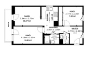
Wohnung zu verkaufen 45.89 m²

Szczecin
Gumieńce, Zachodniopomorskie
BON48778 10266608
549 000 PLN
: 11 963,39 PLN
Administrative Miete: 380 PLN
11 963,39
Administrative Miete
380 PLN
Ownership-Typ
Hypothek
Gesamtfläche
45.89 m²
Zahl der Zimmer
3
Boden
1
Anzahl der Etagen
3
Material
Backstein
Die Bauweise
Mehrfamilienhaus
Zustand des objektes
Perfekt
Zustand
Perfekt
Zentralheizung
Städtische Zentralheizung
Küche Typ
Separate
Balkon
Ja
Garage
Ja
Parkplatz
Ja
Boden Eigentum Typ
Hypothek
Zapisz się na nasz newsletter i odbierz bezpłatny poradnik
Zapisując się wyrażasz zgodę na przesyłanie informacji handlowych związanych z działalnością firmy Atelia Agnieszka Zalewska za pomocą środków komunikacji elektronicznej w rozumieniu ustawy z dnia 18 lipca 2002 roku o świadczenie usług drogą elektroniczną (Dz.U.2017.1219 t.j.) na podany adres e-mail przez firmę Atelia Agnieszka Zalewska. Zgoda jest dobrowolna i może być w każdej chwili wycofana, klikając w odpowiedni link na końcu wiadomości e-mail. Wycofanie zgody nie wpływa na zgodność z prawem przetwarzania, którego dokonano na podstawie zgody przed jej wycofaniem. Więcej informacji na ten temat przeczytasz w Polityce Prywatności.