10 064,75
Ownership-Typ
Hypothek
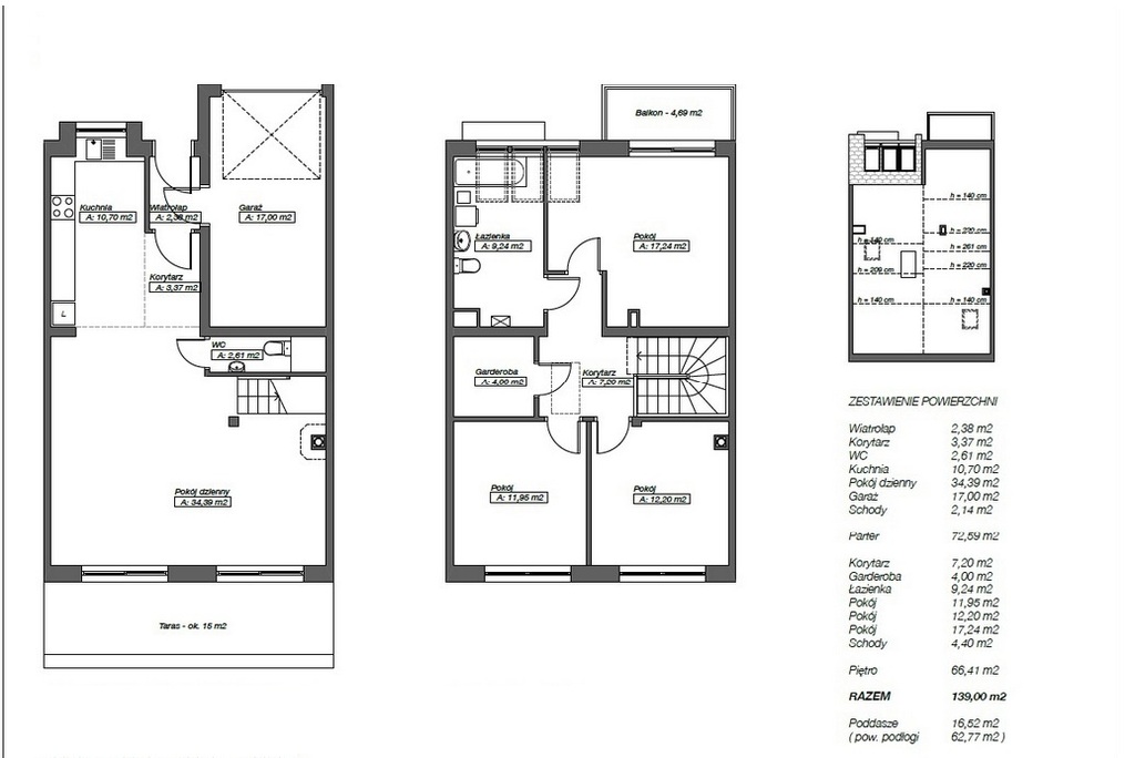
Gesamtfläche
139 m²
Nutzfläche
139 m²
Zahl der Zimmer
4
Anzahl der Etagen
1
Material
Sand lime brick
Zustand des objektes
Schale
Zustand
Schale
Küche Typ
Geöffnet
Garage
Ja
Garten
Ja
Garden area
178 m²
Boden Eigentum Typ
Hypothek
Lot
178 m²
Lot Form
Unregelmäßig
Driveway Typ
Betonmischer
Kanalisation
Ja
Strom
Ja
Wasser
Ja
Gas
Ja