Wohnung zu verkaufen 64.9 m²

Szczecin
os. Bukowe, Zachodniopomorskie
INW33667 10265729
670 000 PLN
: 10 323,57 PLN
Administrative Miete: 843 PLN
10 323,57
Administrative Miete
843 PLN
Ownership-Typ
Hypothek
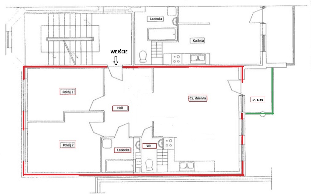
Gesamtfläche
64.9 m²
Zahl der Zimmer
3
Boden
1
Anzahl der Etagen
5
Material
Backstein
Die Bauweise
Niedrige Wohnblock
Zustand
Sehr gute
Küche Typ
Angrenzende
Balkon
Ja
Zapisz się na nasz newsletter i odbierz bezpłatny poradnik
Zapisując się wyrażasz zgodę na przesyłanie informacji handlowych związanych z działalnością firmy Atelia Agnieszka Zalewska za pomocą środków komunikacji elektronicznej w rozumieniu ustawy z dnia 18 lipca 2002 roku o świadczenie usług drogą elektroniczną (Dz.U.2017.1219 t.j.) na podany adres e-mail przez firmę Atelia Agnieszka Zalewska. Zgoda jest dobrowolna i może być w każdej chwili wycofana, klikając w odpowiedni link na końcu wiadomości e-mail. Wycofanie zgody nie wpływa na zgodność z prawem przetwarzania, którego dokonano na podstawie zgody przed jej wycofaniem. Więcej informacji na ten temat przeczytasz w Polityce Prywatności.