11 483,38
Administrative Miete
170 PLN
Ownership-Typ
Hypothek
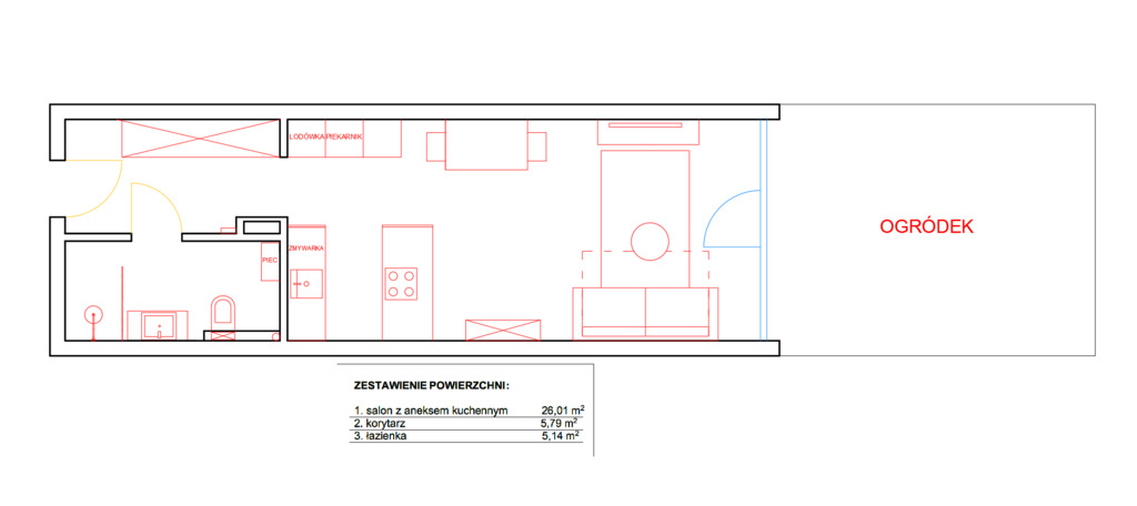
Gesamtfläche
37.01 m²
Zahl der Zimmer
1
Anzahl der Etagen
2
Material
Sand lime brick
Die Bauweise
Niedrige Wohnblock
Zustand
Perfekt
Küche Typ
Angrenzende
Garage
Ja
Garten
Ja
Boden Eigentum Typ
AWZ
Gas
Ja