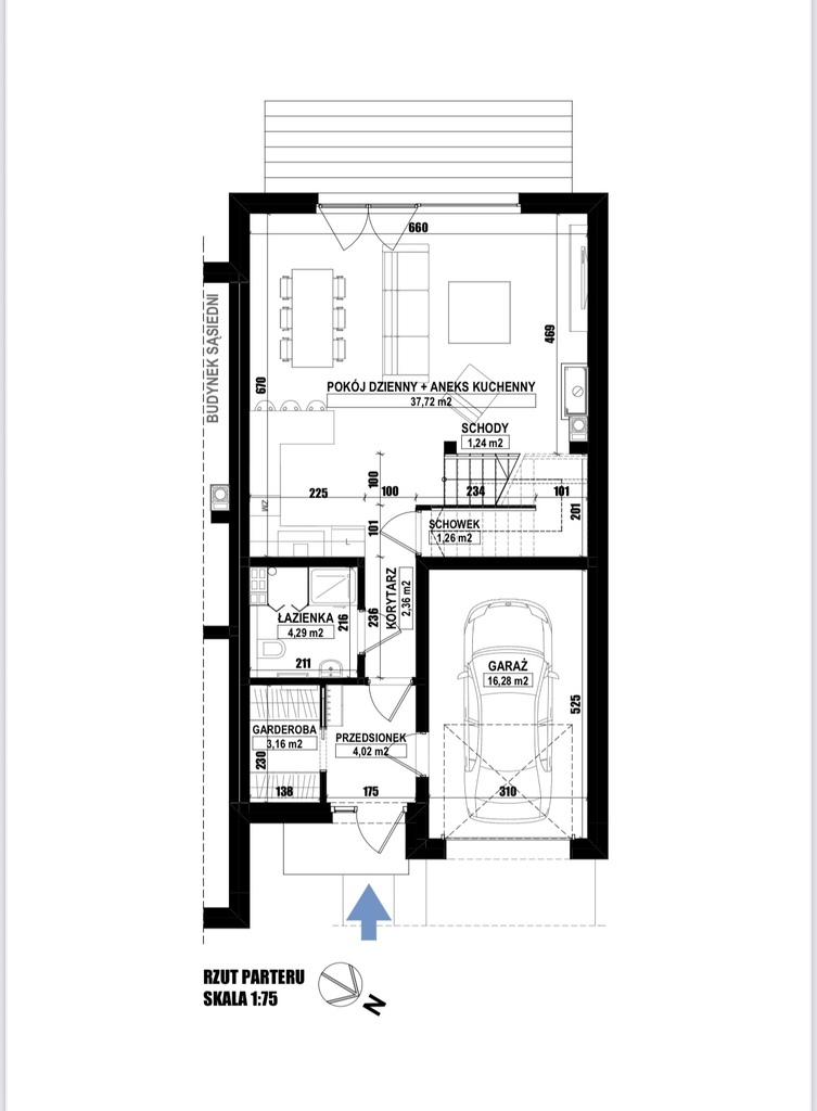
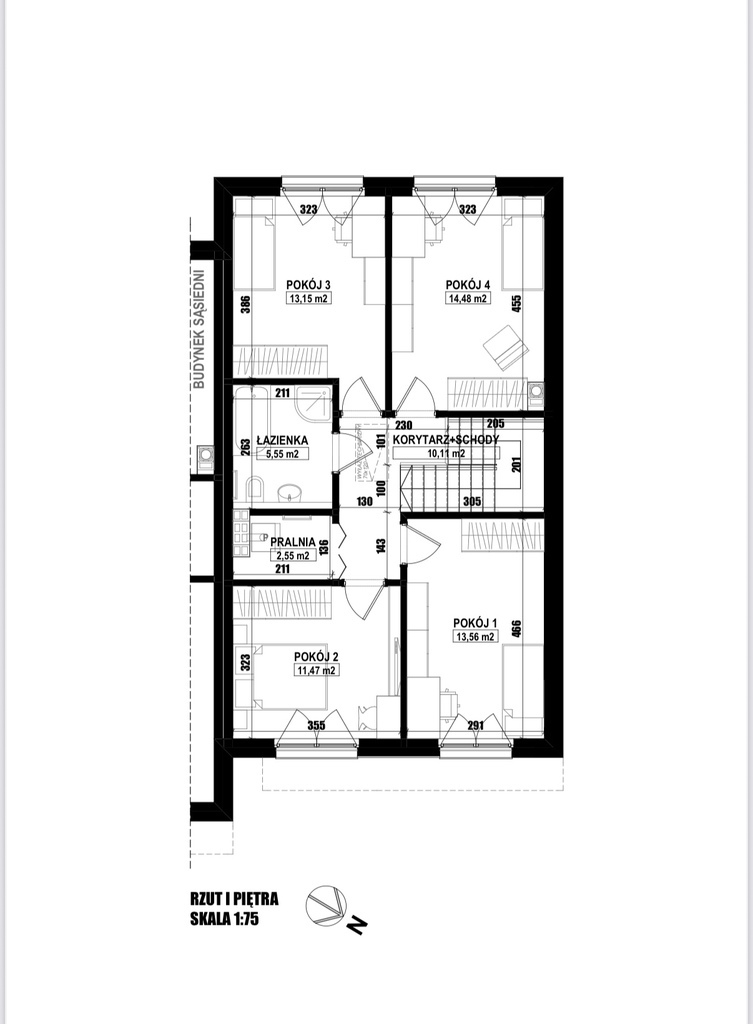
Zu verkaufen: ein schönes und luxuriöses, nie bewohntes Reihenendhaus mit einer Fläche von 141 m² im neuen, prestigeträchtigen Teil von Bezrzecze. Neu gebaute, gepflasterte Straße mit Gehwegen und Beleuchtung, alle Medien: Gas, Strom, Abwasser und städtisches Wasser und Regenwasser. Auffahrt aus modernen Pflastersteinen. Sehr hoher Standard der Innenausstattung, wie auf den beigefügten Fotos und dem Video zu sehen, das Sie sich unbedingt ansehen müssen! Schöne Designer-LED-Beleuchtung, Eichholtz-Lampe, schöne Fischgrät-Vinylpaneele, große Fliesenformate, abgehängte Decken, große Fenster – all dies ist geschmackvoll fertiggestellt und vermittelt ein Gefühl von Behaglichkeit. Fußbodenheizung im gesamten Haus – Zweikreis-Gas-Brennwertkessel mit geschlossener Brennkammer der Marke DE DITRICH mit Wassertank. Klimaanlage und Wärmeversorgungssystem für die gesamte Etage des Hauses. 3-Scheiben-PVC-Fenster mit schwarzen Rahmen. Wasserinstallation für den Garten-Anti-Frizz-Wasserhahn vorbereitet. Landschaftsgarten und große Terrasse auf Anlagen. Das Haus wurde nach allen Inspektionen im April dieses Jahres neu übergeben. Käufer ist von der 2%igen PCC-Steuer befreit – Verkäufer stellt Mehrwertsteuerrechnung aus. BEREIT ZUR SOFORTIGEN VERMIETUNG. EXKLUSIV
Haus zu verkaufen 141 m²
Szczecin
Bezrzecze, Zachodniopomorskie
Bezrzecze, Zachodniopomorskie
ELT34090 10258644
2 049 000 PLN
: 14 531,91 PLN
14 531,91
Ownership-Typ
Hypothek
Gesamtfläche
141 m²
Nutzfläche
141 m²
Zahl der Zimmer
5
Anzahl der Etagen
1
Material
Backstein
Zustand des objektes
Sehr gute
Zustand
Sehr gute
Küche Typ
Angrenzende
Garage
Ja
Garten
Ja
Boden Eigentum Typ
Hypothek
Lot
310 m²
Lot Form
Unregelmäßig
Driveway Typ
Betonmischer
Kanalisation
Ja
Strom
Ja
Wasser
Ja
Gas
Ja