Wohnung zu verkaufen 31.92 m²

Szczecin
Centrum, Zachodniopomorskie
BON48187 10260363
459 000 PLN
: 14 379,70 PLN
Administrative Miete: 380 PLN
14 379,70
Administrative Miete
380 PLN
Ownership-Typ
Hypothek
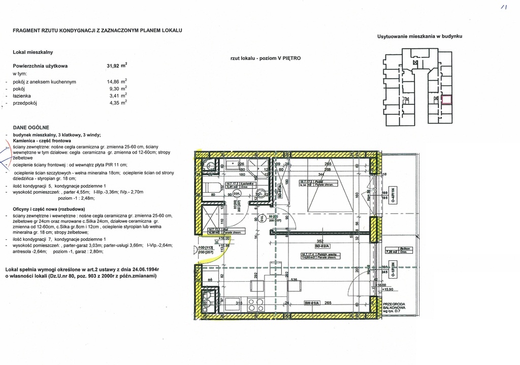
Gesamtfläche
31.92 m²
Zahl der Zimmer
2
Boden
5
Anzahl der Etagen
7
Material
Beton
Die Bauweise
Apartment / Retail Gebäude
Zustand des objektes
Perfekt
Zustand
Schale
Zentralheizung
Städtische Zentralheizung
Küche Typ
Angrenzende
Balkon
Ja
Zapisz się na nasz newsletter i odbierz bezpłatny poradnik
Zapisując się wyrażasz zgodę na przesyłanie informacji handlowych związanych z działalnością firmy Atelia Agnieszka Zalewska za pomocą środków komunikacji elektronicznej w rozumieniu ustawy z dnia 18 lipca 2002 roku o świadczenie usług drogą elektroniczną (Dz.U.2017.1219 t.j.) na podany adres e-mail przez firmę Atelia Agnieszka Zalewska. Zgoda jest dobrowolna i może być w każdej chwili wycofana, klikając w odpowiedni link na końcu wiadomości e-mail. Wycofanie zgody nie wpływa na zgodność z prawem przetwarzania, którego dokonano na podstawie zgody przed jej wycofaniem. Więcej informacji na ten temat przeczytasz w Polityce Prywatności.