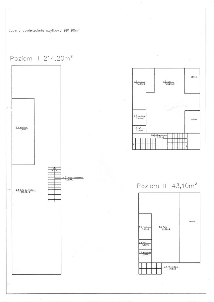
Gewerbeobjekt zur Miete 991.9 m²CzepinoZachodniopomorskieBON48174 10258167 32 400 PLN: 32,66 PLN 32,66Ownership-TypHypothekGesamtfläche991.9 m²MaterialBacksteinZustand des objektesGutLot9100 m²StromJaGasJa