Gewerbeflächen zur Miete 123 m²

Szczecin
Wały Chrobrego, Zachodniopomorskie
WEB21023 10261059
2 000 PLN
: 16,26 PLN

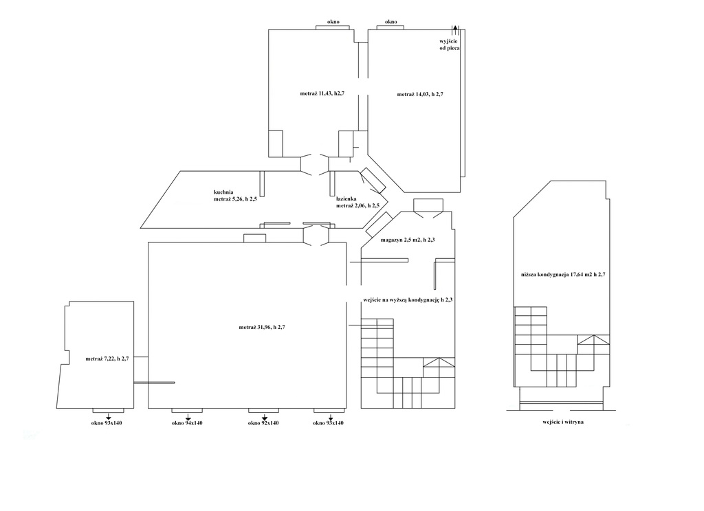
Wir empfehlen Ihnen, diese Gewerbefläche in der Nähe von Wały Chrobrego zu erkunden. Diese 123 m² große Fläche erstreckt sich über zwei Ebenen (Erdgeschoss und Erdgeschoss). Ebene 0 beherbergt einen Raum, während Ebene -1 drei Räume beherbergt, darunter ein Badezimmer, einen Hauswirtschaftsraum und einen Abstellraum. Ein Hauptmerkmal dieser Fläche ist das große Schaufenster, während die untere Ebene große Fenster aufweist, die für viel natürliches Licht sorgen. Bögen und freiliegende Ziegeldecken machen diese Immobilie einzigartig. Heizung und Warmwasser werden von einem Gaskessel mit Doppelfunktion bereitgestellt, auch Gasofen genannt. Das Gebäude, in dem sich die Fläche befindet, ist in gutem Zustand. Die Miete beträgt 2.000 PLN + MwSt. = 2.460 PLN brutto. Zusätzliche Gebühren sind an den Hausverwalter zu entrichten (einschließlich einer Vorauszahlung für Wasser- und Kaltwasserverbrauch) sowie Strom und Gas basierend auf den Rechnungen des Lieferanten. Eine Kaution ist erforderlich. Schlüssel sind im Büro erhältlich. Besichtigungen sind willkommen.

16,26
Gesamtfläche
123 m²
Anzahl der Etagen
4
Material
Backstein
Die Bauweise
Mietshaus
Zustand des objektes
Gut
Zustand
Sehr gute
Driveway Typ
Asphalt
Kanalisation
Ja
Strom
Ja
Wasser
Ja
Gas
Ja
Gewerbe-Typ
Dienstleistungen / Einzelhandel
Zapisz się na nasz newsletter i odbierz bezpłatny poradnik
Zapisując się wyrażasz zgodę na przesyłanie informacji handlowych związanych z działalnością firmy Atelia Agnieszka Zalewska za pomocą środków komunikacji elektronicznej w rozumieniu ustawy z dnia 18 lipca 2002 roku o świadczenie usług drogą elektroniczną (Dz.U.2017.1219 t.j.) na podany adres e-mail przez firmę Atelia Agnieszka Zalewska. Zgoda jest dobrowolna i może być w każdej chwili wycofana, klikając w odpowiedni link na końcu wiadomości e-mail. Wycofanie zgody nie wpływa na zgodność z prawem przetwarzania, którego dokonano na podstawie zgody przed jej wycofaniem. Więcej informacji na ten temat przeczytasz w Polityce Prywatności.