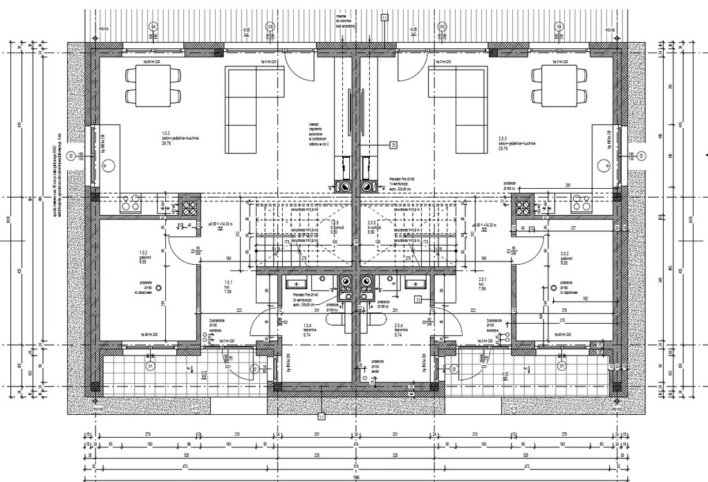
Zu verkaufen ist eine sehr schöne neue, bezugsfertige Doppelhaushälfte in perfekter Lage mit Blick auf den Teich und andere neue Wohngebäude im schönen Dorf Siadło Dolne – 10 Autominuten vom Zentrum von Stettin entfernt. Zufahrt über eine asphaltierte Straße. In der Nähe gibt es einen schönen Yachthafen und eine Promenade mit Grillplätzen. In unmittelbarer Nähe entsteht ein Lebensmittelgeschäft, Restaurant etc., was das Leben noch angenehmer machen wird. Das Haus liegt am Ende einer Sackgasse, was uns Ruhe und Frieden abseits vom Autoverkehr garantiert. Energiesparendes und ökologisches Gebäude, ausgestattet mit einer 8-kW-Atlantic-Wärmepumpe (in Frankreich hergestellte EU-Pumpe). Außenverkleidung des Gebäudes: – Außenwände – Silka-Kalksandsteine; – Bauen auf einer Fundamentplatte auf Pfählen – Fundamentdämmung – Remmers Materialien und Technik; – 20 cm Polystyrol-Isolierung, Abschluss mit Fassadenputz; – Dachboden – mit PUR-Schaum isoliert (ökologische und energiesparende Lösung); – Dachziegel – Zement; – dreifach verglaste PVC-Fenster, Türen – PVC; Einbruchhemmende Eingangstür Typ „Gerda“ – Ausführung – Struktur- und Trennwände, Gipsputze; 190 Liter Tank. Fußbodenheizung im gesamten Haus. Anlage für Photovoltaik vorbereitet; – Zentralsteuerung für Fußbodenheizung; – Verteilung der Elektroinstallation; – Installation elektrischer Geräte (Steckdosen, Schalter); – Alarmanlage installiert – Verkabelung für mehrere Basismelder (Räume mit Fenstern); – eingezäunte Hausgärten zur individuellen Bebauung (z.B. Ausbringung von gewachsener Erde): Die flächenmäßige Nutzfläche beträgt 107,1m² einer Doppelhaushälfte. Gesamtfläche 118,2 m2 Erdgeschoss: 58,14 m2 Wohnzimmer + Esszimmer + Küche 29,76 m2 Arbeitszimmer 9,55 m2 Bad mit WC 5,74 m2 Flur 7,59 m2 Treppenhaus 5,5 m2 Obergeschoss: 57,58 m2 Schlafzimmer 16,84 m2 Schlafzimmer 13,85 m2 Schlafzimmer 13,84 m2 Bad mit WC 7,82 m2 Flur 5,23 m2 Gegen Aufpreis besteht die Möglichkeit, einen Carport zu errichten. Käufer von 2 % PCC-Steuer befreit – EXKLUSIV.
Haus zu verkaufen 118.2 m²
Siadło Dolne
Zachodniopomorskie
Zachodniopomorskie
ELT33963 10246066
1 029 000 PLN
: 8 705,58 PLN
8 705,58
Ownership-Typ
Hypothek
Gesamtfläche
118.2 m²
Nutzfläche
118.2 m²
Zahl der Zimmer
5
Anzahl der Etagen
1
Material
Backstein
Zustand des objektes
Needs Finishing
Zustand
Needs Finishing
Küche Typ
Mit Fenster
Garten
Ja
Boden Eigentum Typ
Hypothek
Lot
390 m²
Lot Form
Rechteck
Driveway Typ
Betonmischer
Kanalisation
Ja
Strom
Ja
Wasser
Ja