Wohnung zu verkaufen 35.44 m²

Szczecin
os. Arkońskie, Zachodniopomorskie
ELT33960 10245973
249 000 PLN
: 7 025,96 PLN
Administrative Miete: 260 PLN

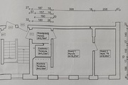
Zu verkaufen ist eine Zweizimmerwohnung im ersten Stock eines Mietshauses auf dem Anwesen. Arkony. Tolle Lage zum Wohnen, in der Nähe von Infrastruktur und Erholungsgebieten, sowie eine gute Kapitalanlage zur Miete. Vorteile der Immobilie: – Elektroinstallation erneuert – Wände aufgefrischt, neue Paneele im Schlafzimmer. – alle Fenster aus PVC – Möglichkeit, das Auto im Hof zu parken – tolle Lage, direkt neben dem Autobahnkreuz Łękno – die Höhe von 2,9 m vermittelt ein Gefühl von Weite. – in der Wohnung ist ein Glasfaserkabel vorhanden. Die Wohnung wird aktuell über einen Kachelofen beheizt – eine Umstellung der Heizung auf Elektro oder Gas ist möglich. Zur Wohnung gehört ein Kellerabteil. 4,2 m². Aufteilung der Wohnung: – Zimmer mit einer Fläche von 18,3 m², von dem aus wir einen Zugang zur Küche mit einer Fläche von 3 m² und einem Schlafzimmer mit 9 m² haben – Flur – Badezimmer mit Toilette. Die Wohnung ist leer und sofort verfügbar. Ich lade Sie zur Präsentation ein.

7 025,96
Administrative Miete
260 PLN
Ownership-Typ
Hypothek
Gesamtfläche
35.44 m²
Zahl der Zimmer
2
Boden
1
Anzahl der Etagen
3
Material
Backstein
Die Bauweise
Mietshaus
Zustand des objektes
Gut
Zustand
Gut
Küche Typ
Mit Fenster
Driveway Typ
Asphalt
Zapisz się na nasz newsletter i odbierz bezpłatny poradnik
Zapisując się wyrażasz zgodę na przesyłanie informacji handlowych związanych z działalnością firmy Atelia Agnieszka Zalewska za pomocą środków komunikacji elektronicznej w rozumieniu ustawy z dnia 18 lipca 2002 roku o świadczenie usług drogą elektroniczną (Dz.U.2017.1219 t.j.) na podany adres e-mail przez firmę Atelia Agnieszka Zalewska. Zgoda jest dobrowolna i może być w każdej chwili wycofana, klikając w odpowiedni link na końcu wiadomości e-mail. Wycofanie zgody nie wpływa na zgodność z prawem przetwarzania, którego dokonano na podstawie zgody przed jej wycofaniem. Więcej informacji na ten temat przeczytasz w Polityce Prywatności.