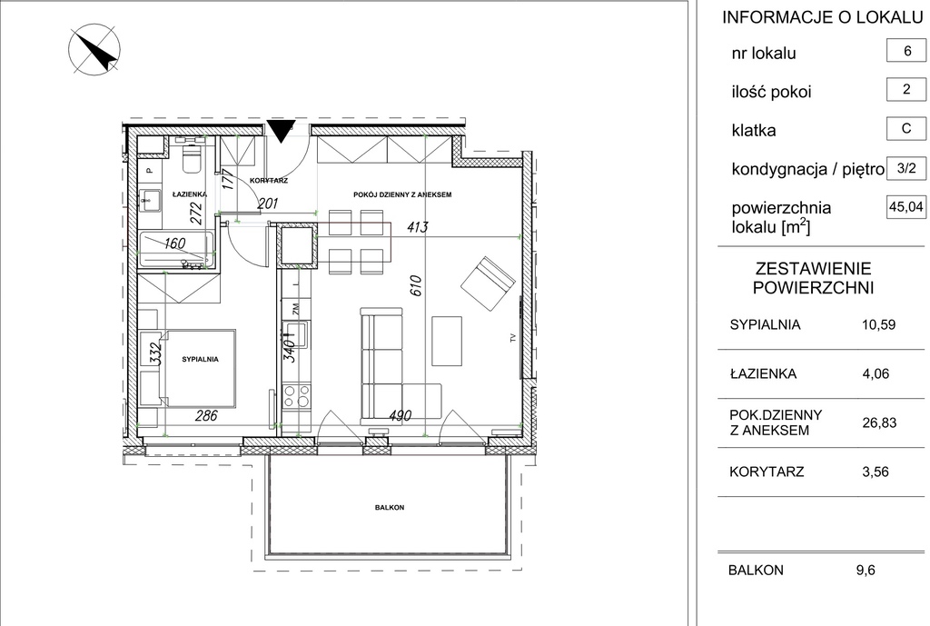
Wohnung zu verkaufen 45.04 m²SzczecinŁasztownia, Zachodniopomorskie390/11683/OMS 10253122 644 072 PLN: 14 300,00 PLNAdministrative Miete: 1 PLN 14 300,00Administrative Miete1 PLNOwnership-TypHypothekGesamtfläche45.04 m²Zahl der Zimmer2Boden2Anzahl der Etagen8MaterialOtherDie BauweiseApartment / Retail GebäudeZustandSchaleKüche TypGeöffnet