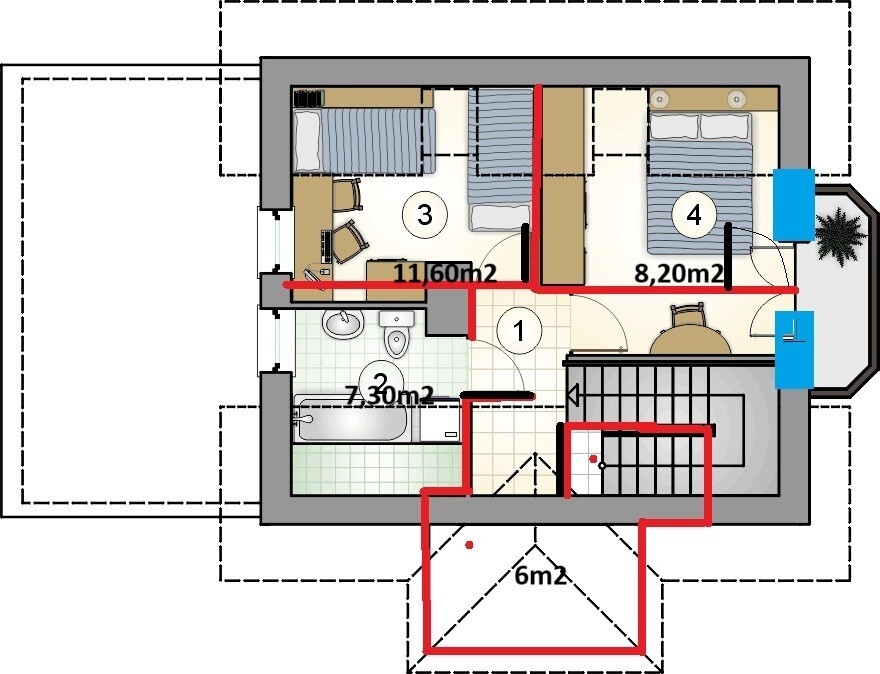
Ein einstöckiges Haus mit Dachboden und Garage im Chopin-Anwesen in Kamień Pomorski. In der Nähe des Grundstücks befindet sich ein Fuß- und Radweg, der zum 7 km entfernten Meer führt. Kamień Pomorski ist unter anderem berühmt für vom malerischen Jachthafen am Kamieński-Stausee, der Altstadt oder der Kathedrale, wo Orgelkonzerte stattfinden. Das nicht unterkellerte Haus befindet sich auf einem 500 m2 großen Grundstück. Fertiggestellt im Rohbau-Standard – Baubeginn 2017 und noch nicht abgenommen. Erdgeschoss mit einer Fläche von 39,2 m2 + Garage mit einer Fläche von 22 m2 (mit einem nicht kippbaren Fenster): – Vorraum – 3,2 m2, – Wohnzimmer 22,95 m2, – Küche + Esszimmer – 6,2 m2, – Heizraum – 3,45 m2 mit Platz für einen Ofen – Gas- oder Pelletkessel, – Badezimmer – 3,4 m2. Die Elektroinstallation wurde im Erdgeschoss installiert. Die Räume wurden teilweise verputzt. Dreifach verglaste PVC-Fenster mit elektrischen Einbruchschutz-Rollläden. Im Wohnzimmer ist Platz für einen Kamin mit Wassermantel. Wasser- und Abwasserinstallation in einem Gebäude ohne Anschluss an eine externe Installation. Städtische Wasser- und Abwasserversorgung. Das Gebäude besteht aus Suporex-Blöcken, die mit 15 cm Styropor isoliert sind. Die Wasser- und Abwassersysteme unter dem Gebäude sind nicht angeschlossen. Zur zweiten Ebene ist eine Wendeltreppe aus Holz geplant. Das Dachgeschoss hat eine Nutzfläche von 31,1 m2 und besteht aus: – Flur mit Kommunikation, – Badezimmer – 7,30 m2, – Zimmer – 11,60 m2, – Zimmer – 8,20 m2, – Kleiderschrank – 6 m2. Alle Räume außer dem Badezimmer sind verputzt und mit Elektroinstallation ausgestattet. Flaches, mit Gras bepflanztes Grundstück mit einem kleinen Holzhaus für Werkzeuge, eingezäunt mit einem Metallzaun. Die Zufahrt zum Grundstück erfolgt über eine beleuchtete Straße mit Pflastersteinen.
Haus zu verkaufen 97 m²
Kamień Pomorski
Zachodniopomorskie
Zachodniopomorskie
PAT21263 10241523
425 000 PLN
: 4 381,44 PLN
4 381,44
Ownership-Typ
Hypothek
Gesamtfläche
97 m²
Nutzfläche
75 m²
Zahl der Zimmer
3
Anzahl der Etagen
1
Material
Blocks
Zustand des objektes
Needs Finishing
Zustand
Needs Finishing
Küche Typ
Mit Fenster
Garage
Ja
Garten
Ja
Boden Eigentum Typ
Hypothek
Lot
500 m²
Lot Form
Rechteck
Driveway Typ
Betonmischer
Kanalisation
Ja
Strom
Ja
Wasser
Ja
Gas
Ja