11 471,31
Ownership-Typ
Hypothek
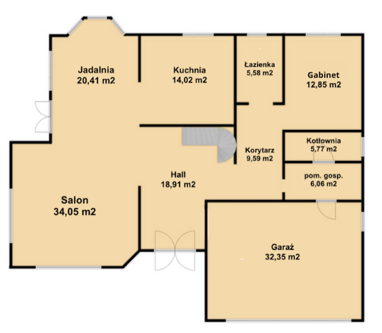
Gesamtfläche
335.62 m²
Nutzfläche
273.77 m²
Zahl der Zimmer
7
Anzahl der Etagen
1
Material
Air Brick
Zustand des objektes
Perfekt
Zustand
Perfekt
Küche Typ
Separate
Garage
Ja
Garden area
776 m²
Boden Eigentum Typ
Hypothek
Lot
1001 m²
Lot Form
Rechteck
Driveway Typ
Asphalt
Kanalisation
Ja
Strom
Ja
Wasser
Ja
Gas
Ja