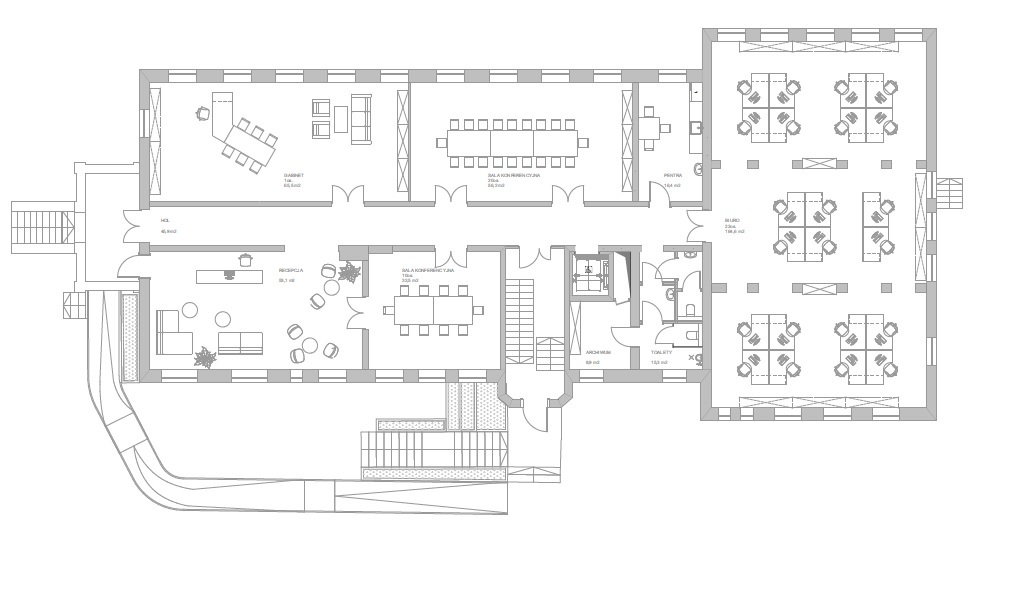
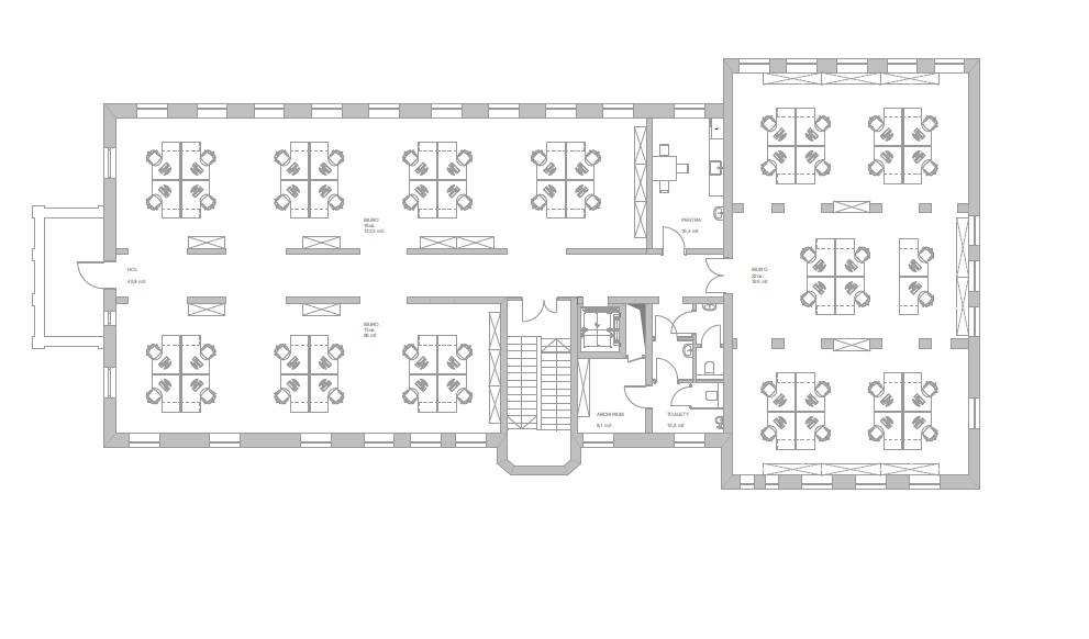
Zu vermieten, ein Gebäude bestehend aus vier Etagen mit einer Gesamtfläche von 1.848,1 m2: 1. Keller – 451,6 m2, 2. Erdgeschoss – 459,6 m2, 3. Erster Stock – 455,7 m2, 4. Dachgeschoss – 481 m2. Das Anwesen befindet sich in einer friedlichen und ruhigen Gegend, umgeben von einem Stadtpark, in unmittelbarer Nähe zum Stadtzentrum. Rund um das Gebäude wurde viel zusätzliche Vegetation gepflanzt. Direkt neben dem Gebäude stehen den Mietern zahlreiche Parkplätze zur Verfügung. Bus- und Straßenbahnhaltestellen befinden sich in unmittelbarer Nähe. Es besteht die Möglichkeit das gesamte Gebäude oder einzelne Stockwerke zu mieten. Der Vermieter wird die Räumlichkeiten sowohl in Form von Open Space als auch in Form von Einzelbüros an die Bedürfnisse der zukünftigen Mieter anpassen. Das Objekt ist ideal geeignet für folgende Tätigkeiten: 1. Büro, 2. medizinische Versorgung, 3. Vorschule/Kindergarten, 4. Call Center, 5. Bildung. Laut Raumordnungsplan handelt es sich bei dem Grundstück, auf dem sich das Gebäude befindet, um eine Fläche von Bildungs- und Wissenschaftsdiensten sowie Gesundheits-, Pflege- und Sozialhilfediensten. Der in der Anzeige angegebene Preis ist der Nettopreis. Mehrwertsteuer muss hinzugefügt werden. Hinzu kommen Verwaltungskosten von 16 PLN/m2 und Gebühren für gebrauchte Medien.