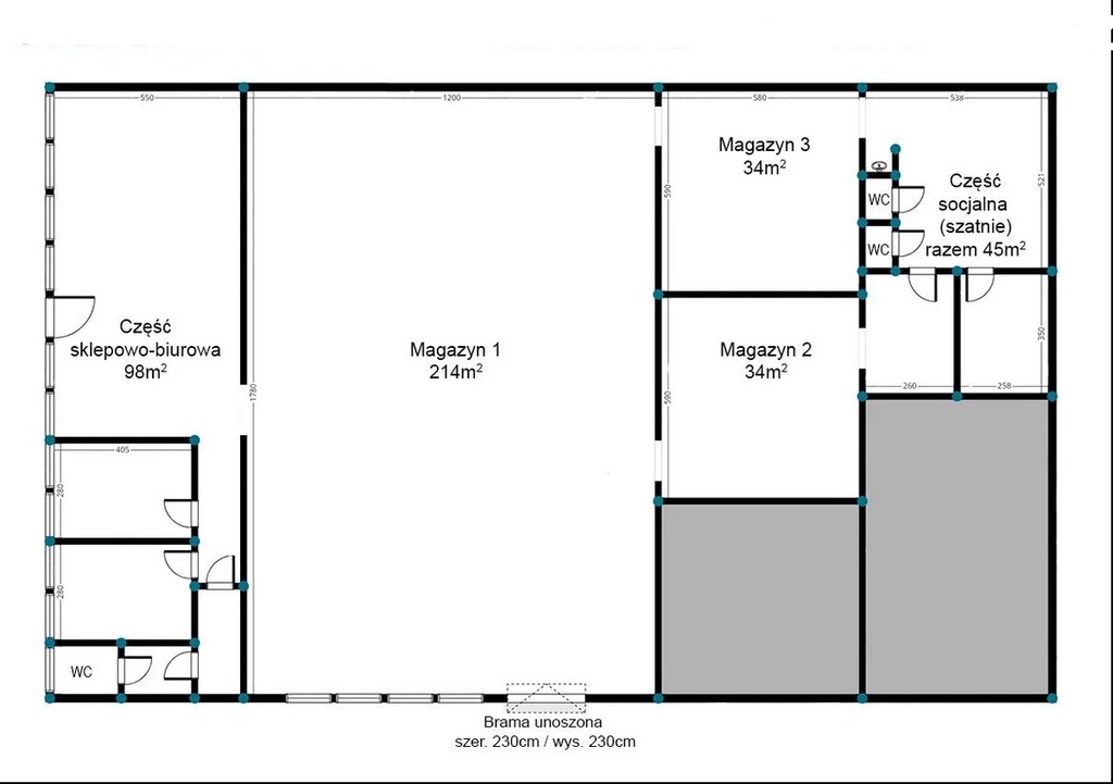
Gewerbeobjekt zur Miete 425 m²

Szczecin
Pomorzany, Zachodniopomorskie
CIT24715 10165581
16 800 PLN
: 39,53 PLN
39,53
Ownership-Typ
Hypothek
Gesamtfläche
425 m²
Zahl der Zimmer
1
Die Bauweise
Lagerung / Bürogebäude
Zustand des objektes
Sehr gute
Parkplatz
Ja
Driveway Typ
Asphalt
Kanalisation
Ja
Strom
Ja
Wasser
Ja
Gas
Ja
Zapisz się na nasz newsletter i odbierz bezpłatny poradnik
Zapisując się wyrażasz zgodę na przesyłanie informacji handlowych związanych z działalnością firmy Atelia Agnieszka Zalewska za pomocą środków komunikacji elektronicznej w rozumieniu ustawy z dnia 18 lipca 2002 roku o świadczenie usług drogą elektroniczną (Dz.U.2017.1219 t.j.) na podany adres e-mail przez firmę Atelia Agnieszka Zalewska. Zgoda jest dobrowolna i może być w każdej chwili wycofana, klikając w odpowiedni link na końcu wiadomości e-mail. Wycofanie zgody nie wpływa na zgodność z prawem przetwarzania, którego dokonano na podstawie zgody przed jej wycofaniem. Więcej informacji na ten temat przeczytasz w Polityce Prywatności.