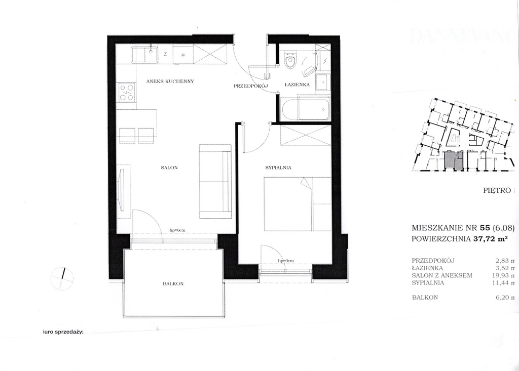
In a new development featuring modern solutions and contemporary design in the center of Szczecin. APARTMENT DESCRIPTION: 2-room apartment with an area of 37.72 m², with access to a 6.2 m² balcony. Living room with kitchenette (19.93 m²), bathroom (3.52 m²), hallway (2.83 m²). South-facing balcony (6.2 m²). 5th floor in a 5-story building with an elevator. South-facing windows. Air conditioning, app-based heating control, comfortable heating mats in the bathrooms, reed switch system in the windows to turn off the heating, and a hotel-style light switch – no need to check every room anymore – a single touch turns off all the lamps in the apartment. Furthermore, a reed switch system in the windows to turn off the heating when a window is opened, and triple-glazed windows. Heating and hot water provided by Szczecin Thermal Energy (SEC). The building is gas-free. Low rent. Estimated time of availability of the apartment is December 2025. Parking space in the underground garage for PLN 90,000 BUILDING DESCRIPTION: building constructed of silicate blocks.
Apartment for sale 37.72 m²
Szczecin
Centrum, Zachodniopomorskie
Centrum, Zachodniopomorskie
FKT24952 10260071
671 416 PLN
Price m²: 17 800,00 PLN
Administrative rent: 350 PLN
Price m²
17 800,00
Administrative rent
350 PLN
Ownership type
Mortgage
Total area
37.72 m²
No. of rooms
2
Floor
5
Number of floors
5
Material
Sand lime brick
Building type
Low block of flats
Building condition
Perfect
Condition
Shell
Central heating
Urban central heating
Kitchen type
Adjoining
Balcony
Yes
Garage
Yes
Driveway type
Asphalt
Sewerage
Yes
Electricity
Yes