Price m²
14 300,00
Administrative rent
500 PLN
Ownership type
Mortgage
Total area
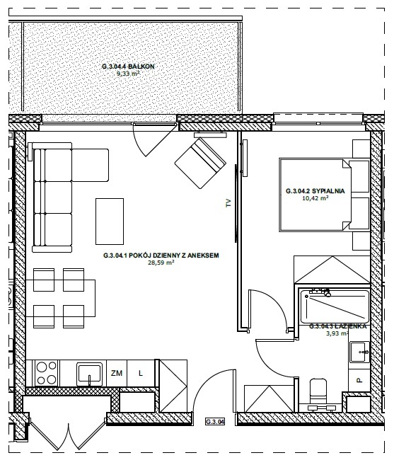
42.94 m²
No. of rooms
2
Floor
3
Number of floors
9
Material
Sand lime brick
Building type
Apartment/Retail building
Building condition
Perfect
Condition
Shell
Kitchen type
With window
Garage
Yes
Gas
Yes