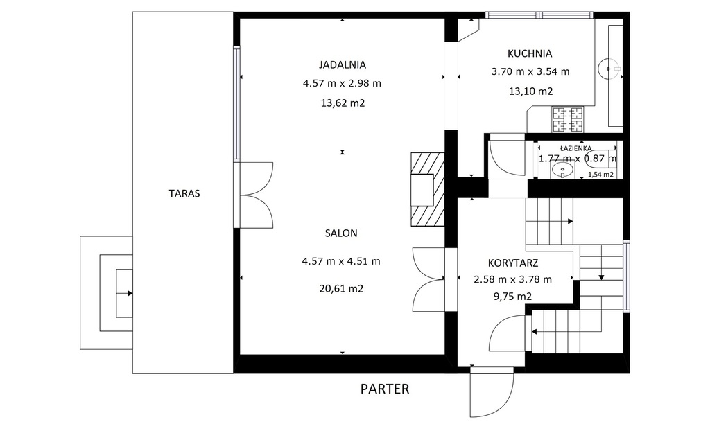
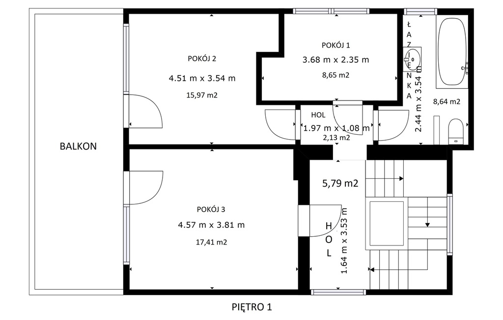
House for rent 215.7 m²

Szczecin
Pilchowo, Zachodniopomorskie
BON47138 10238795
8 000 PLN
Price m²: 37,09 PLN
Price m²
37,09
Ownership type
Mortgage
Total area
215.7 m²
Usable area
156.9 m²
No. of rooms
6
Number of floors
2
Material
Other
Building condition
Very good
Condition
Good
Central heating
Gas
Kitchen type
Separate
Garage
Yes
Garden
Yes
Lot area
485 m²
Lot shape
Square
Driveway type
Asphalt
Sewerage
Yes
Electricity
Yes
Gas
Yes
Zapisz się na nasz newsletter i odbierz bezpłatny poradnik
Zapisując się wyrażasz zgodę na przesyłanie informacji handlowych związanych z działalnością firmy Atelia Agnieszka Zalewska za pomocą środków komunikacji elektronicznej w rozumieniu ustawy z dnia 18 lipca 2002 roku o świadczenie usług drogą elektroniczną (Dz.U.2017.1219 t.j.) na podany adres e-mail przez firmę Atelia Agnieszka Zalewska. Zgoda jest dobrowolna i może być w każdej chwili wycofana, klikając w odpowiedni link na końcu wiadomości e-mail. Wycofanie zgody nie wpływa na zgodność z prawem przetwarzania, którego dokonano na podstawie zgody przed jej wycofaniem. Więcej informacji na ten temat przeczytasz w Polityce Prywatności.