Apartment for sale 63.8 m²

Szczecin
os. Majowe, Zachodniopomorskie
PMR25457 10250382
525 000 PLN
Price m²: 8 228,84 PLN
Administrative rent: 750 PLN

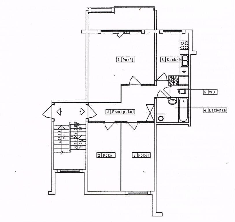
For sale a three-room apartment in a great location, Majowe housing estate. The premises have an area of 63.8 m2, with a favorable layout of rooms, located on the third floor of a low, insulated building, full ownership. The above-mentioned area of the premises consists of: – living room approx. 19 m2 with access to a sunny balcony on the west side, – 2x rooms approx. 11 m2 – bright kitchen approx. 6.5 m2 equipped with furniture – bathroom with a bathtub, separate toilet, – corridor with useful storage spaces and cabinets. The rooms have panels, in the kitchen, bathroom and corridor tiles, painted walls (to be repainted at your own discretion), windows replaced with PVC. Heating and hot water from the city network, rent is approx. PLN 750 and includes administration costs, advances for water consumption and heating, renovation fund, flat-rate gas and garbage collection. Staircase after renovation, the intercom has also been replaced. The owner also uses the basement room. Well-developed infrastructure, quiet area and good access to public transport. In the area there are numerous shops, a pharmacy, a playground. The apartment is ideal for a couple and a small family. The date of delivery of the premises to be agreed with the current owner (there is also a possibility of exchanging for a two-room apartment, on the ground floor, preferably in the Zdroje district). We recommend and cordially invite you to the presentations. Exclusive offer.

Price m²
8 228,84
Administrative rent
750 PLN
Ownership type
Mortgage
Total area
63.8 m²
No. of rooms
3
Floor
3
Number of floors
4
Material
Precast concrete slabs
Building type
Low block of flats
Condition
Good
Kitchen type
With window
Ground ownership type
Mortgage
Gas
Yes
Zapisz się na nasz newsletter i odbierz bezpłatny poradnik
Zapisując się wyrażasz zgodę na przesyłanie informacji handlowych związanych z działalnością firmy Atelia Agnieszka Zalewska za pomocą środków komunikacji elektronicznej w rozumieniu ustawy z dnia 18 lipca 2002 roku o świadczenie usług drogą elektroniczną (Dz.U.2017.1219 t.j.) na podany adres e-mail przez firmę Atelia Agnieszka Zalewska. Zgoda jest dobrowolna i może być w każdej chwili wycofana, klikając w odpowiedni link na końcu wiadomości e-mail. Wycofanie zgody nie wpływa na zgodność z prawem przetwarzania, którego dokonano na podstawie zgody przed jej wycofaniem. Więcej informacji na ten temat przeczytasz w Polityce Prywatności.