Price m²
10 005,98
Administrative rent
500 PLN
Ownership type
Cooperative ownership right with property register
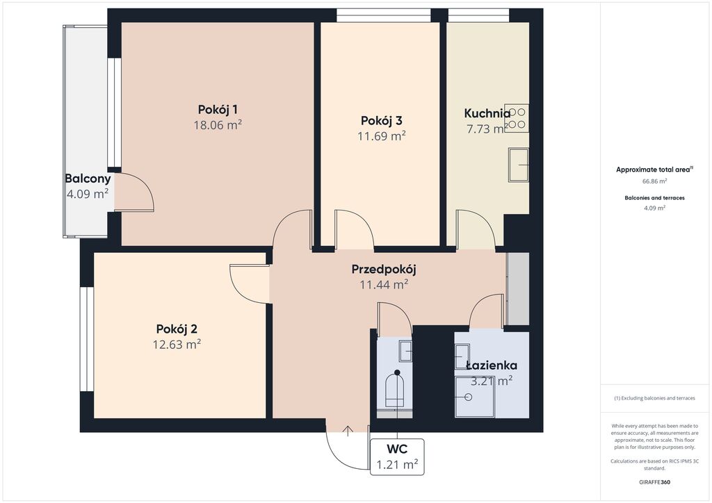
Total area
66.86 m²
No. of rooms
3
Number of floors
10
Material
Precast concrete slabs
Building type
High block of flats
Building condition
Very good
Condition
Very good
Kitchen type
With window
Garage
Yes
Gas
Yes