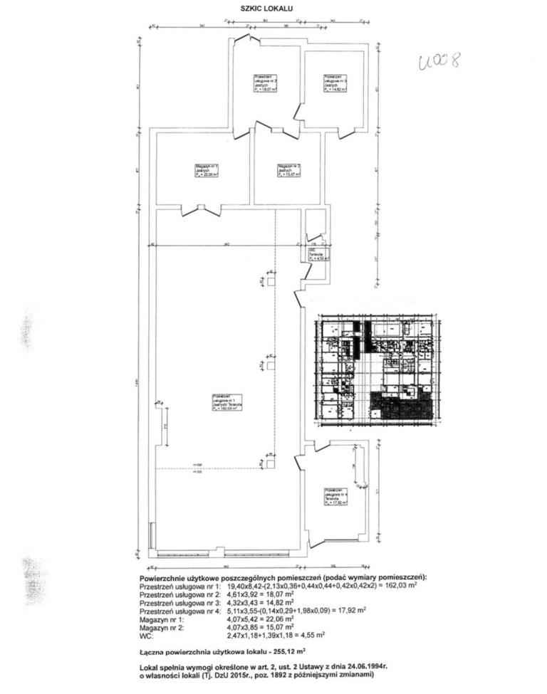
Commercial space for sale 255.12 m²

Szczecin
Gumieńce, Zachodniopomorskie
SWN32338 10256777
1 763 000 PLN
Price m²: 6 910,00 PLN
Price m²
6 910,00
Ownership type
Mortgage
Total area
255.12 m²
Number of floors
7
Building type
Apartment/Office building
Building condition
Perfect
Condition
Perfect
Garage
Yes
Commercial space type
Services/Retail
Zapisz się na nasz newsletter i odbierz bezpłatny poradnik
Zapisując się wyrażasz zgodę na przesyłanie informacji handlowych związanych z działalnością firmy Atelia Agnieszka Zalewska za pomocą środków komunikacji elektronicznej w rozumieniu ustawy z dnia 18 lipca 2002 roku o świadczenie usług drogą elektroniczną (Dz.U.2017.1219 t.j.) na podany adres e-mail przez firmę Atelia Agnieszka Zalewska. Zgoda jest dobrowolna i może być w każdej chwili wycofana, klikając w odpowiedni link na końcu wiadomości e-mail. Wycofanie zgody nie wpływa na zgodność z prawem przetwarzania, którego dokonano na podstawie zgody przed jej wycofaniem. Więcej informacji na ten temat przeczytasz w Polityce Prywatności.