Price m²
5 972,22
Ownership type
Mortgage
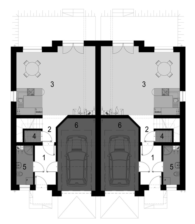
Total area
144 m²
Usable area
125.7 m²
No. of rooms
4
Number of floors
1
Material
Blocks
Building condition
Shell
Condition
Shell
Central heating
Gas
Kitchen type
Adjoining
Garage
Yes
Parking
Yes
Garden
Yes
Ground ownership type
Mortgage
Lot area
399 m²
Lot shape
Rectangle
Driveway type
Gravel road
Electricity
Yes
Water
Yes
Gas
Yes