Energooszczędny dom dwulokalowy Jęczydół/Kobylanka

Jęczydół
Zachodniopomorskie
ATL02813 10270138
850 000 PLN
Cena za m²: 7 643,88 PLN

Energooszczędny dom dwulokalowy – Jęczydół / gmina Kobylanka Opis Na sprzedaż nowoczesny dom jednorodzinny dwulokalowy, położony w miejscowości Jęczydół (gmina Kobylanka) – w spokojnym, zielonym otoczeniu, z bardzo dobrym dojazdem do Stargardu i Szczecina.
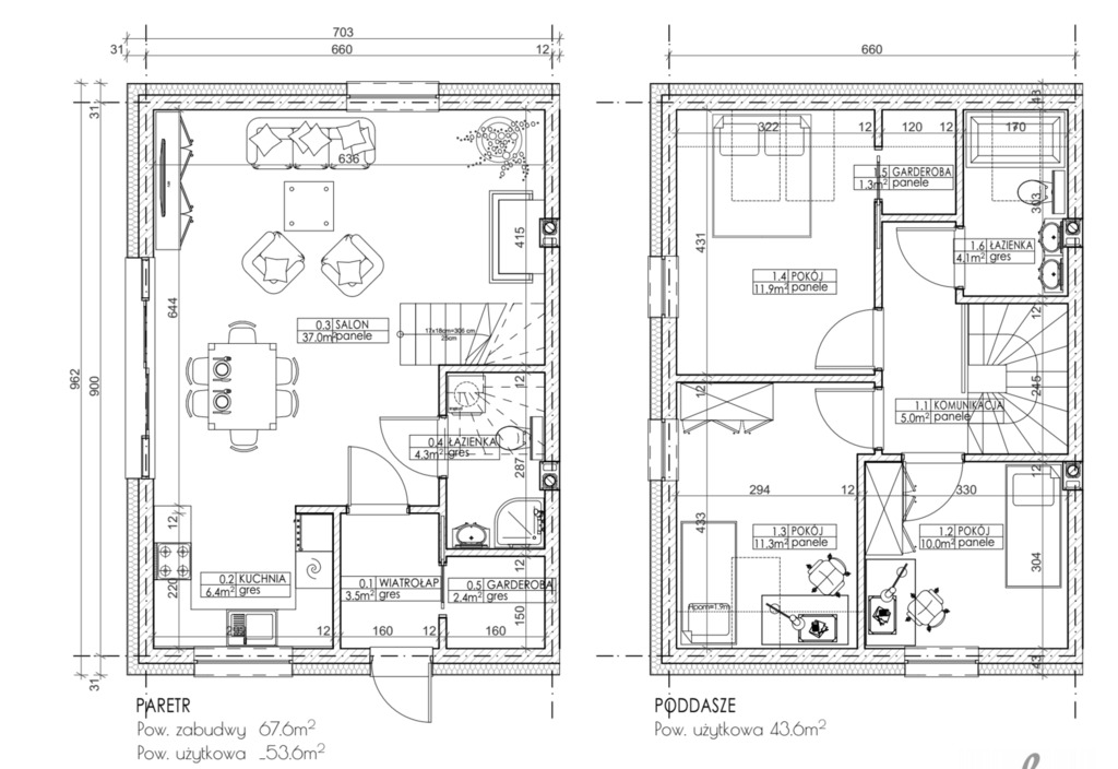
Każdy lokal posiada powierzchnię 111 m², co zapewnia komfortową przestrzeń dla rodziny, wygodny podział stref dziennych i prywatnych oraz funkcjonalną organizację życia codziennego.
Nieruchomość została wybudowana z naciskiem na wysoką jakość materiałów, energooszczędność oraz trwałość, co przekłada się na komfort użytkowania i niskie koszty eksploatacji.
Lokalizacja – blisko natury i miasta Jęczydół to miejscowość ceniona za spokój, czyste powietrze oraz bezpośredni kontakt z naturą. W najbliższym otoczeniu znajdują się:

  • lasy i tereny spacerowe,
  • jeziora z możliwością kąpieli, sportów wodnych i wędkowania,
  • plaża w niedalekiej odległości – idealna na rodzinny wypoczynek.

Jednocześnie lokalizacja zapewnia szybki dojazd do:

  • Stargardu,
  • Szczecina,
  • głównych tras komunikacyjnych regionu.

To idealne miejsce dla rodzin, które chcą mieszkać spokojnie, z dala od miejskiego zgiełku, nie rezygnując z dostępu do infrastruktury miejskiej.
Standard wykonania i materiały Dom wykonano z wysokiej klasy materiałów, zapewniających trwałość oraz bardzo dobrą izolacyjność.
Dodatkowe atuty techniczne:

  • Światłowód doprowadzony do działki – szybki internet bez dodatkowych inwestycji infrastrukturalnych
  • Przyłącze pod kominek – możliwość aranżacji dodatkowego źródła ciepła w salonie
  • Sterowniki temperatury umożliwiające wygodne zarządzanie ogrzewaniem
  • Stolarka renomowanej marki Wiśniowski
  • Tynki wewnętrzne wapienno-cementowe – trwałe i odporne
  • Elewacja zabezpieczona preparatem Brilux, chroniącym przed osadzaniem się glonów
  • Bezpieczne szyby na piętrze
  • Gwarancja na pompę ciepła – 5 lat

Instalacje i komfort techniczny Dom wyposażony jest w nowoczesne, energooszczędne rozwiązania:

  • Pompa ciepła YORK 7 kW – wydajne i ekonomiczne ogrzewanie całego budynku
  • Ogrzewanie podłogowe w całym domu
  • Instalacje wykonane w miedzi
  • Bezprzewodowy system sterowania temperaturą
  • Przygotowanie pod instalację fotowoltaiczną
  • Instalacja alarmowa i domofonowa
  • Instalacja TV
  • Brama wjazdowa przygotowana pod automatykę

Kotłownia została estetycznie wykończona płytkami.
Strych

  • ocieplony pianką PUR
  • schody składane
  • przestrzeń do własnej aranżacji – idealna na schowek lub dodatkowe miejsce do przechowywania

Podsumowanie To propozycja dla rodzin, które szukają:

  • solidnie wybudowanego domu w spokojnej lokalizacji,
  • bliskości natury i terenów rekreacyjnych,
  • energooszczędnych rozwiązań,
  • komfortowej przestrzeni do życia,
  • dobrej komunikacji ze Szczecinem i Stargardem.

Cena: 850 000 zł – dotyczy jednego lokalu 

Zapraszam do kontaktu w celu uzyskania szczegółowych informacji oraz umówienia prezentacji nieruchomości.

Cena za m²
7 643,88
Stan prawny
Własność
Powierzchnia
111.2 m²
Powierzchnia użytkowa
97.2 m²
Liczba pokoi
4
Liczba pięter
2
Materiał
Silikat
Stan budynku
Stan deweloperski
Stan nieruchomości
Stan deweloperski
Typ kuchni
Otwarta
Garaż/Miejsca parkingowe
Tak
Stan prawny gruntu
Własność
Powierzchnia działki
484 m²
Kształt działki
Prostokąt
Droga dojazdowa
Utwardzona
Kanalizacja
Tak
Prąd
Tak
Woda
Tak
Zapisz się na nasz newsletter i odbierz bezpłatny poradnik
Zapisując się wyrażasz zgodę na przesyłanie informacji handlowych związanych z działalnością firmy Atelia Agnieszka Zalewska za pomocą środków komunikacji elektronicznej w rozumieniu ustawy z dnia 18 lipca 2002 roku o świadczenie usług drogą elektroniczną (Dz.U.2017.1219 t.j.) na podany adres e-mail przez firmę Atelia Agnieszka Zalewska. Zgoda jest dobrowolna i może być w każdej chwili wycofana, klikając w odpowiedni link na końcu wiadomości e-mail. Wycofanie zgody nie wpływa na zgodność z prawem przetwarzania, którego dokonano na podstawie zgody przed jej wycofaniem. Więcej informacji na ten temat przeczytasz w Polityce Prywatności.