Bezrzecze bliźniak bez skosów , 5 pokoi

Bezrzecze
Zachodniopomorskie
ELT34136 10261399
1 200 000 PLN
Cena za m²: 9 375,00 PLN

Na sprzedaż nowoczesny, komfortowy bliźniak w stanie deweloperskim na Bezrzeczu. 

Do każdego lokalu przynależą dwa miejsca parkingowe ( możliwość zrobienia wiaty, duża odległość między budynkami ).
Wszystkie media gminne : prąd , gaz, kanalizacja sanitarna i kanalizacja deszczowa .

Standard deweloperski :

ogrzewanie podłogowe na parterze i na piętrze .
– ściany zewnętrzne porotherm 25 cm + styropian grafitowy 15 cm + tynk.

okna PCV trzyszybowe, w salonie drzwi tarasowe przesuwne.

– ściana pomiędzy lokalami silka akustyczna  24 cm  Klasa 20. 
– piec gazowy,  SAUNIER DUVAL – THELIA CONDENS.

 – w stropie przygotowany otwór – możliwość montażu kominka .
strop poddasza, ocieplony wełną mineralną 20cm.
dach docieplony pianą PUR.

– instalacja wodno-kanalizacyjna, elektryczna.
– instalacja TV i internetowa.
 tynki maszynowe gipsowe.
– Posadzki betonowe.

– dachówka BRAS CELTYCKA Cisar, kolor grafitowy.

– Rynny i rury spustowe.
– Obróbki kominiarskie.

drzwi wejściowe PANTOR  72 mm ciepłe. 

Zagospodarowanie terenu:

– miejsca parkingowe i dojście do lokalu z kostki brukowej
– Ogrodzenie systemowe panelowe ( bez frontu )

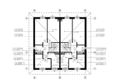
Na powierzchnię 128m2 składają się na parterze :

salon z aneksem o pow. 40,81m2
pokój o pow. 9,85 m2 / możliwość zrobienia osobnej kuchni. 

toaleta o pow. 1,76 m2
– pom. gospodarcze o pow. 3 m2
– pom. gospodarcze o pow. 0,74 m2 
schody o pow. 5,3 m2

Piętro ( bez skosów ) : 

pokój o pow. 17 m2
pokój o pow. 15,28 m2
pokój o pow. 10,23 m2
garderoba  o pow. 3,43 m2
łazienka razem z toaletą o pow, 7,5m2
korytarz o pow. 5,26 m2

Doskonała lokalizacja, nowoczesny dom w zabudowie bliźniaczej w cichym kameralnym miejscu na Bezrzeczu. 
Kupujący zwolniony z opłaty PCC, 2 % do Urzędu Skarbowego.

Polecam i zapraszam na prezentację

Cena za m²
9 375,00
Stan prawny
Własność
Powierzchnia
128 m²
Powierzchnia użytkowa
128 m²
Liczba pokoi
5
Liczba pięter
1
Materiał
Cegła
Stan budynku
Stan deweloperski
Stan nieruchomości
Stan deweloperski
Typ kuchni
Aneks
Brak
Garaż/Miejsca parkingowe
Tak
Ogród
Tak
Powierzchnia ogrodu
300 m²
Powierzchnia działki
400 m²
Kształt działki
Prostokąt
Droga dojazdowa
Asfaltowa
Rodzaj kanalizacji
Miejska na działce
Kanalizacja
Tak
Prąd
Tak
Woda
Tak
Gaz
Tak
Zapisz się na nasz newsletter i odbierz bezpłatny poradnik
Zapisując się wyrażasz zgodę na przesyłanie informacji handlowych związanych z działalnością firmy Atelia Agnieszka Zalewska za pomocą środków komunikacji elektronicznej w rozumieniu ustawy z dnia 18 lipca 2002 roku o świadczenie usług drogą elektroniczną (Dz.U.2017.1219 t.j.) na podany adres e-mail przez firmę Atelia Agnieszka Zalewska. Zgoda jest dobrowolna i może być w każdej chwili wycofana, klikając w odpowiedni link na końcu wiadomości e-mail. Wycofanie zgody nie wpływa na zgodność z prawem przetwarzania, którego dokonano na podstawie zgody przed jej wycofaniem. Więcej informacji na ten temat przeczytasz w Polityce Prywatności.