Dom z Garażem! Kliniska Wielkie! 4 pokoje!

Kliniska Wielkie
Zachodniopomorskie
ROY03854 10251128
799 000 PLN
Cena za m²: 6 007,52 PLN

Świeża oferta sprzedaży jaką jest bliźniak oddzielony garażami, zlokalizowany w przepięknej miejscowości Kliniska Wielkie, nieopodal Szczecina! 20 km do Szczecina, 12 km do Goleniowa!

1 Etap sprzedaży 2 Połówki -> ODBIÓR CZERWIEC 2025 -> DOSTĘPNE

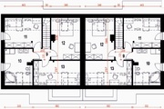
Piętro 50,70 m2:
– 3 pokoje 11,90 m2 (15,80 m2), 13,90 m2 (17 m2), 11,30 m2 (16,40 m2),
– łazienka 11,90 m2 (14,10 m2).

Parter 70,20 m2:
– Salon z aneksem kuchennym 31,6 m2,
– łazienka 1,40 m2,
– wiatrołap + garderoba 6,40 m2,
– pomieszczenie gospodarcze / kotłownia 5,90 m2,
+ garaż jednostanowiskowy znajdujący się w bryle budynku 21 m2.

Dom dwukondygnacyjny o powierzchni 120,90 m2
Do domu przynależny garaż i kotłownia co łącznie daje ok. 26,90 m2.
Działka o powierzchni ok. 500 m2.

Domy budowane w technologii tradycyjnej murowanej, strop monolityczny, okna PCV – 3 szybowe
Bryła budynku w klasycznym stylu, z zewnątrz ocieplenie styropianem 18 cm, elewacja wykończona tynkiem mineralnym, podbitka dachu PCV, dachówka. Dojścia i podjazd – kostka betonowa, teren wokół wyrównany. Na całym parterze oraz piętrze – ogrzewanie podłogowe. Stolarka na domy zakupiona została w całości przez producenta Marsel.

Nieruchomość w standardzie deweloperskim – Możliwe wykończenie domu pod klienta – Odbiór pod klucz.

Kupujący zwolniony z PCC 2%

Zapraszam serdecznie na prezentację.

Cena za m²
6 007,52
Stan prawny
Własność
Powierzchnia
133 m²
Powierzchnia użytkowa
133 m²
Liczba pokoi
4
Liczba pięter
2
Materiał
Silikat
Stan budynku
Stan deweloperski
Stan nieruchomości
Stan deweloperski
Typ kuchni
Aneks
Garaż/Miejsca parkingowe
Tak
Powierzchnia ogrodu
500 m²
Powierzchnia działki
1000 m²
Kształt działki
Prostokąt
Droga dojazdowa
Utwardzona
Kanalizacja
Tak
Prąd
Tak
Woda
Tak
Gaz
Tak
Zapisz się na nasz newsletter i odbierz bezpłatny poradnik
Zapisując się wyrażasz zgodę na przesyłanie informacji handlowych związanych z działalnością firmy Atelia Agnieszka Zalewska za pomocą środków komunikacji elektronicznej w rozumieniu ustawy z dnia 18 lipca 2002 roku o świadczenie usług drogą elektroniczną (Dz.U.2017.1219 t.j.) na podany adres e-mail przez firmę Atelia Agnieszka Zalewska. Zgoda jest dobrowolna i może być w każdej chwili wycofana, klikając w odpowiedni link na końcu wiadomości e-mail. Wycofanie zgody nie wpływa na zgodność z prawem przetwarzania, którego dokonano na podstawie zgody przed jej wycofaniem. Więcej informacji na ten temat przeczytasz w Polityce Prywatności.